![]() |
Descriptif de l'appartement " La Linotte" 37 m²
Pour 2 à 3 personnes Aperçu mer de l'appartement, lumineux, location toute l'année. Au coeur de la côte de Granit rose, idéalement bien placé pour visiter toute la côte, située au bord du sentier de randonnée GR34. La station balnéaire est sur l'un des plus beaux sites naturels et touristiques de Bretagne.Vous aurez le choix entre 12 plages différentes pour vous baignez etc ... Au 1er étage d'une belle propriété à 100 m de la plage de sable fin (Toul Bihan) et dans un environnement calme. A 800 m du centre. Location classé en meublé de tourisme. Wifi. |
|
|||||||||||||||||||||||||||||||||||||||||||||||||||||||||||||||||||||||||||||||||||||||||||||||||||||||||||||||||||||||||||||||||||||||||||||||||||||||||||||||||||||||||||||
|
|||||||||||||||||||||||||||||||||||||||||||||||||||||||||||||||||||||||||||||||||||||||||||||||||||||||||||||||||||||||||||||||||||||||||||||||||||||||||||||||||||||||||||||||
![]() |
Dans un endroit calme," Linotte" se trouve au 1er étage. Le RDC est inoccupé |
||||||||||||||||||||||||||||||||||||||||||||||||||||||||||||||||||||||||||||||||||||||||||||||||||||||||||||||||||||||||||||||||||||||||||||||||||||||||||||||||||||||||||||||
| Vue de la propriété | |||||||||||||||||||||||||||||||||||||||||||||||||||||||||||||||||||||||||||||||||||||||||||||||||||||||||||||||||||||||||||||||||||||||||||||||||||||||||||||||||||||||||||||||
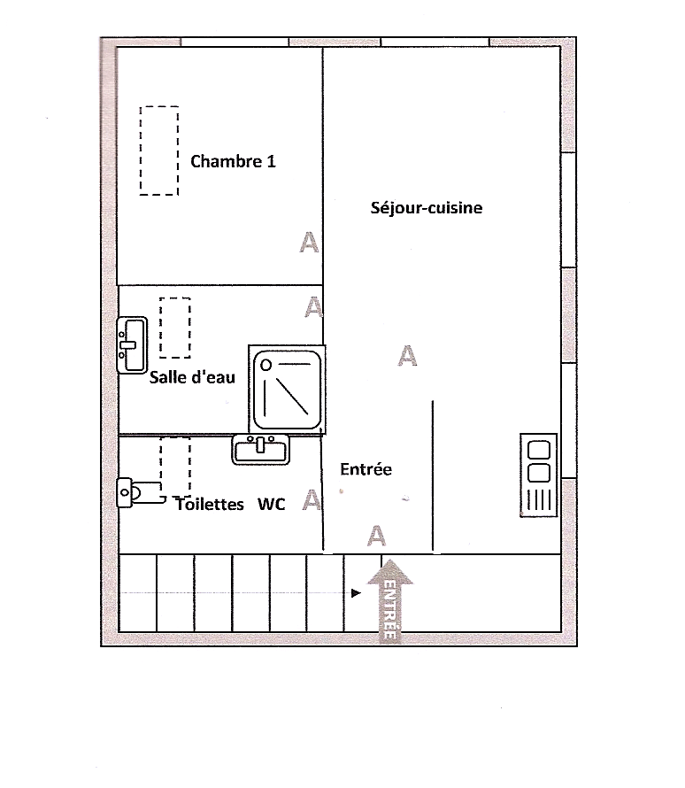
cliquer sur le plan pour l'agrandir
|
Entrée Coin cuisine avec plan de travail, séparée par un meuble bar. Piano (gazinière 5 feux), four, frigo-congélateur, lave vaiselle, micro-onde, hotte aspirante) Séjour, salon (canapé lit), téléviseur. Appareils ménagers divers : cafetière électrique, grill pain, bouilloire électrique, aspirateur, planche et fer à repasser. Volets occultants sur toutes les ouvertures. Chambre : Lit de 140x190 avec 2 chevets. Traversins, oreillers, couvertures, couette. Salle de bain : Cabine de douche, vasque, séche cheveux. WC : indépendant avec lave mains. Emplacement parking dans la propriété Cour et jardin .Salon de jardin. Mise à dispositions de dépliants et de brochures d'informations locales. Chauffage au gaz Chéques vacances acceptés. Plage de Toul Bihan, face à la propriété. |
||||||||||||||||||||||||||||||||||||||||||||||||||||||||||||||||||||||||||||||||||||||||||||||||||||||||||||||||||||||||||||||||||||||||||||||||||||||||||||||||||||||||||||||
Viviane et Hervé Hamon 1 impasse du Cosquer 22730 Trégastel Tél : 02.96.45.27.78 - Portable : 06.38.69.68.16 De l'étranger : 00.33.2.96.45.27.78 / 00.33.6.38.69.68.16 E mail : cliquer sur l'adresse viviane.hamon@orange.fr Site perso : https://bretagne22.fr |
Détail des Tarifs | ||||||||||||||||||||||||||||||||||||||||||||||||||||||||||||||||||||||||||||||||||||||||||||||||||||||||||||||||||||||||||||||||||||||||||||||||||||||||||||||||||||||||||||||
![]() |
|||||||||||||||||||||||||||||||||||||||||||||||||||||||||||||||||||||||||||||||||||||||||||||||||||||||||||||||||||||||||||||||||||||||||||||||||||||||||||||||||||||||||||||||
![]() |
![]() |
||||||||||||||||||||||||||||||||||||||||||||||||||||||||||||||||||||||||||||||||||||||||||||||||||||||||||||||||||||||||||||||||||||||||||||||||||||||||||||||||||||||||||||||
![]() |
|||||||||||||||||||||||||||||||||||||||||||||||||||||||||||||||||||||||||||||||||||||||||||||||||||||||||||||||||||||||||||||||||||||||||||||||||||||||||||||||||||||||||||||||
![]() |
![]() |
||||||||||||||||||||||||||||||||||||||||||||||||||||||||||||||||||||||||||||||||||||||||||||||||||||||||||||||||||||||||||||||||||||||||||||||||||||||||||||||||||||||||||||||
![]() |
![]() |
||||||||||||||||||||||||||||||||||||||||||||||||||||||||||||||||||||||||||||||||||||||||||||||||||||||||||||||||||||||||||||||||||||||||||||||||||||||||||||||||||||||||||||||
.
|
Vue de la fenètre du salon |
||||||||||||||||||||||||||||||||||||||||||||||||||||||||||||||||||||||||||||||||||||||||||||||||||||||||||||||||||||||||||||||||||||||||||||||||||||||||||||||||||||||||||||||
|
Plage de Toul Bihan
|
Plage de Kerlavos
|
|||||||||||||||||||||||||||||||||||||||||||||||||||||||||||||||||||||||||||||||||||||||||||||||||||||||||||||||||||||||||||||||||||||||||||||||||||||||||||||||||||||||||||||
|
|||||||||||||||||||||||||||||||||||||||||||||||||||||||||||||||||||||||||||||||||||||||||||||||||||||||||||||||||||||||||||||||||||||||||||||||||||||||||||||||||||||||||||||||
| TARIFS ET DISPONIBILITES 2025 - 2026 "La Linotte " | |||||||||||||||||||||||||||||||||||||||||||||||||||||||||||||||||||||||||||||||||||||||||||||||||||||||||||||||||||||||||||||||||||||||||||||||||||||||||||||||||||||||||||||||
|
|||||||||||||||||||||||||||||||||||||||||||||||||||||||||||||||||||||||||||||||||||||||||||||||||||||||||||||||||||||||||||||||||||||||||||||||||||||||||||||||||||||||||||||||
| Ce planning est remis à jour régulièrement en fonction des confirmations. | |||||||||||||||||||||||||||||||||||||||||||||||||||||||||||||||||||||||||||||||||||||||||||||||||||||||||||||||||||||||||||||||||||||||||||||||||||||||||||||||||||||||||||||||
|
|||||||||||||||||||||||||||||||||||||||||||||||||||||||||||||||||||||||||||||||||||||||||||||||||||||||||||||||||||||||||||||||||||||||||||||||||||||||||||||||||||||||||||||||
Arrivée : dans l'après midi Départ : dans la matinée Toutefois, des arrangements sont possibles en accord avec le propriétaire. Chèques vacances acceptés.
|
|||||||||||||||||||||||||||||||||||||||||||||||||||||||||||||||||||||||||||||||||||||||||||||||||||||||||||||||||||||||||||||||||||||||||||||||||||||||||||||||||||||||||||||||